- Woonoppervlakte
- Circa 108 m²
- Inhoud
- Circa 533 m³
- Bouwjaar
- Gebouwd in 1930
- Aantal kamers
- 3 kamers (2 slaapkamers)
Ruim gelijkvloers appartement in kleinschalig complex (3 appartementen) – Heerenweg 58, Heerlen**
Aan de Heerenweg in Heerlen bieden wij dit ruime en gelijkvloerse appartement aan, gelegen in een kleinschalig complex bestaande uit slechts drie appartementen. Met een woonoppervlakte van 108 m², twee ruime slaapkamers en een royale woonkamer, biedt dit appartement comfortabel en rustig wonen op een prettige locatie.
Het appartement beschikt daarnaast over een inpandige berging in de kelder, ideaal voor extra opslag, fietsen, provisie of hobbyruimte. Het energielabel wordt momenteel nog opgemaakt.
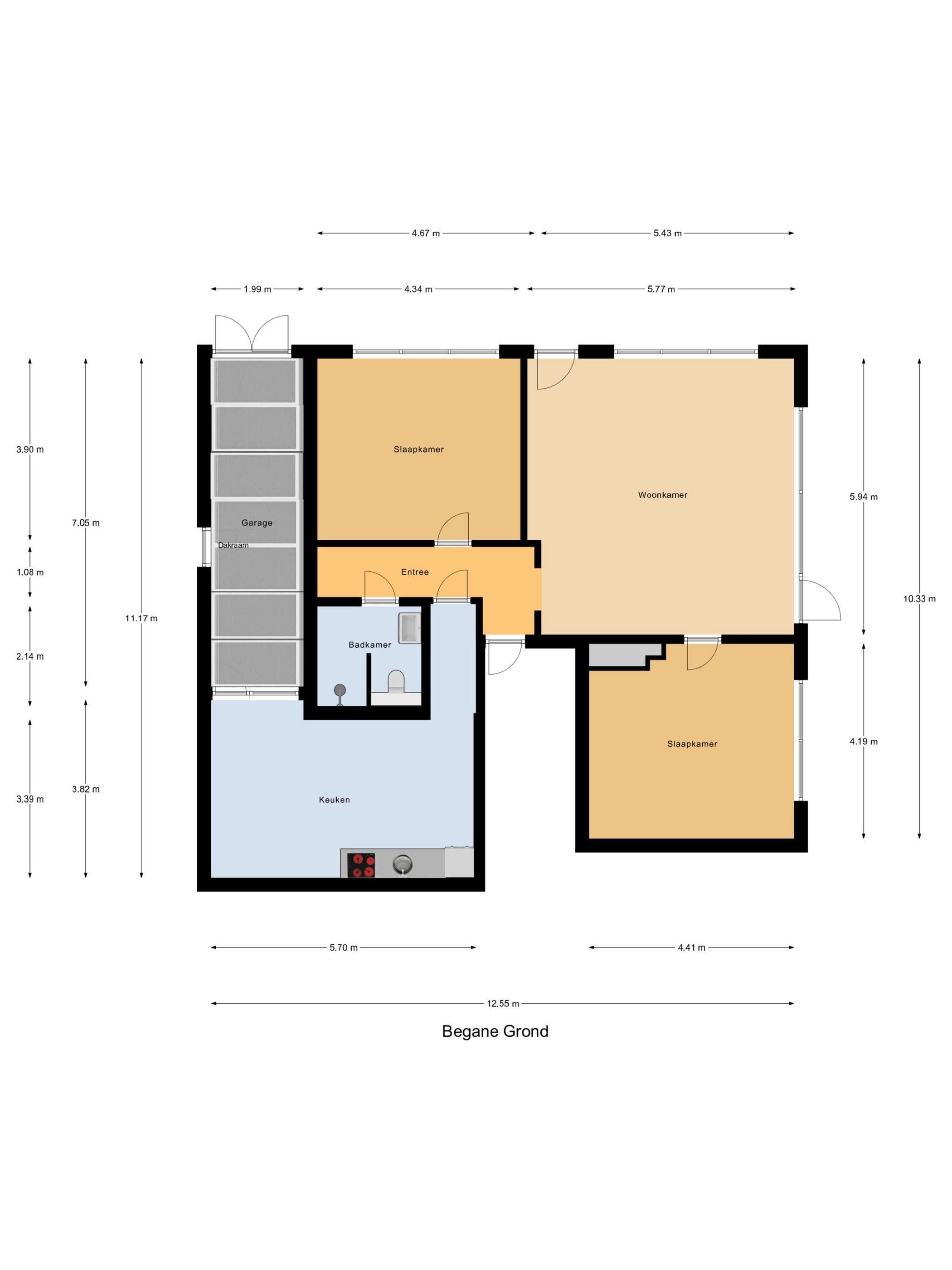
Indeling Appartement – 108 m² woonoppervlak
(Conform BBMI-meetrapport)
• Entree/hal
Ruime hal met toegang tot de woonkamer, keuken, badkamer en slaapkamers.
• Woonkamer (ca. 5.77 × 5.94 m)
Een zeer lichte en royale woonkamer met grote raampartijen.
• Keuken (ca. 5.70 × 3.39 m)
Ruime keuken met basisopstelling en toegang tot buiten. Mogelijkheden voor modernisering.
• Badkamer
Voorzien van douche, toilet en wastafel.
• Slaapkamer 1 (ca. 4.67 × 4.34 m)
Grote slaapkamer aan de achterzijde.
• Slaapkamer 2 (ca. 4.41 × 4.19 m)
Ook geschikt als logeerkamer, werkruimte of hobbykamer.
Inpandige berging (kelder) – ca. 17 m²
De berging bevindt zich in het souterrain en is bereikbaar vanuit het algemene trappenhuis.
Perfect als opslagruimte, fietsenstalling of hobbyruimte.
(Volgens het meetrapport aangeduid als “overige inpandige ruimte”: 14 m² + deel kelderruimte.)
Bijzonderheden
Kleinschalig complex met 3 appartementen
Ruim gelijkvloers appartement van 108 m²
Inpandige kelderberging
Bruto inhoud: 533 m³
Grote raampartijen en veel lichtinval
Rustige, goed bereikbare locatie
Energielabel wordt nog opgemaakt
Ideale basis om naar eigen smaak te moderniseren
Aanvullende informatie (standaard Parkstad Makelaardij)
De waarborgsom/bankgarantie bedraagt 10% van de koopsom. De koper dient deze binnen twee weken na het verlopen van het financieringsvoorbehoud bij de notaris te deponeren.
Ter bescherming van zowel koper als verkoper komt een koopovereenkomst pas tot stand nadat beide partijen de overeenkomst hebben ondertekend (schriftelijkheidsvereiste).
Alle informatie is vrijblijvend en uitsluitend bedoeld om een indicatie te geven. Maten zijn bij benadering; aan de informatie kunnen geen rechten worden ontleend.
Overdracht
- Vraagprijs
- € 219.000 k.k.
- Status
- Verkocht
- Bijdrage VvE
- € 150,- per maand
Bouw
- Object type
- Portiekflat, appartement
- Soort bouw
- Bestaande bouw
- Bouwjaar
- 1930
- Soort dak
- Zadeldak bedekt met pannen
Oppervlakte en inhoud
- Woonoppervlakte
- 108 m²
- Inhoud
- 533 m³
- Overige inpandige ruimte
- 14 m²
- Externe bergruimte
- 17 m²
Indeling
- Aantal kamers
- 3 kamers (2 slaapkamers)
- Aantal badkamers
- 1 badkamer en 1 apart toilet
- Badkamervoorzieningen
- Douche, wastafel
- Voorzieningen
- Tv kabel, glasvezel kabel, internet, opslagruimte
Energie
- Energielabel
- D
- Energielabel registratie
- 25-11-2025
- Verwarming
- Warmtepomp, Electrische verwarming
Buitenruimte
- Ligging
- Aan drukke weg, in woonwijk, in bosrijke omgeving, bij ov voorziening, bij school
Parkeergelegenheid
- Soort parkeergelegenheid
- Openbaar parkeren
VvE checklist
- Periodieke bijdrage
- € 150,- per maand
Energieverbruik in Heerlen
Energielabel deze woning
Energielabel D
Publicatie energielabel: 25-11-2025
Stroomverbruik per jaar
(Gemiddelde appartement in Heerlen)
Gasverbruik per jaar
(Gemiddelde appartement in Heerlen)
* Cijfers zijn afkomstig van het CBS en bedoeld als indicatie en kunnen verschillen voor deze woning
Indicatie hypotheeklasten
Eigen inleg:
Spaargeld / overwaarde
Rente:
Laagste 10-jaars rente
Laagste 10-jaars rente
2,78% - Centraal Beheer Groen... - NHG
3,04% - Centraal Beheer Groen... - 80%
Laagste 20-jaars rente
3,29% - Centraal Beheer Groen... - NHG
3,52% - Centraal Beheer Groen... - 80%
Laagste 30-jaars rente
3,41% - Centraal Beheer Groen... - NHG
3,7% - Argenta Groen Hypotheek... - 80%
Hypotheek:
Bruto maandlasten: € 0 p/m
Netto maandlasten: € 0 p/m
Hoe berekenen we dit?
Het rentepercentage is gebaseerd op de laagste 10 jaars vaste rente voor één hypotheekdeel. De vermelde rente (2.78% met NHG) is gecontroleerd op 14-03-2026. Deze berekening is gebaseerd op een annuïteitenhypotheek die volledig wordt afgelost, waarbij de maandlasten gedurende de gehele looptijd gelijk blijven. De werkelijke rente en netto maandlasten kunnen variëren, afhankelijk van uw persoonlijke situatie en de hypotheekverstrekker. Raadpleeg een financieel adviseur voor een nauwkeurige berekening en advies. Aan deze berekening kunnen geen rechten worden ontleend; het dient enkel als indicatie.
Documentatie
Kadastrale kaart
Leefomgeving
BAG uittreksel
Brochure
Plattegronden PDF
Bezichtiging
Bod uitbrengen
Waardebepaling
Zoekopdracht
Alles downloaden
Zonnegrenzen bekijken
Op de kaart
Inwoners in Heerlen
Cijfers voor postcodegebied 6414
- Totaal aantal inwoners
- 7750 inwoners
- Mannen
- 51%
- Vrouwen
- 49%
Inwoners in Heerlen
Cijfers voor postcodegebied 6414
- tot 15 jaar
- 14%
- 15 tot 25 jaar
- 11%
- 25 tot 35 jaar
- 25%
- 45 tot 65 jaar
- 32%
- 65 en ouder
- 18%
Huishoudens in Heerlen
Cijfers voor postcodegebied 6414
- Eenpersoons zonder kinderen
- 41%
- Meerpersoons zonder kinderen
- 26%
- Huishoudens zonder kinderen
- 67%
Huishoudens in Heerlen
Cijfers voor postcodegebied 6414
- Huishoudens met één kind
- 11%
- Huishoudens met meerdere kinderen
- 21%
- Huishoudens met kinderen
- 32%
Woningen in Heerlen
Cijfers voor postcodegebied 6414
- Woningen voor 1945
- 19%
- Woningen tussen 1945 en 1965
- 49%
- Woningen tussen 1965 en 1975
- 13%
- Woningen tussen 1975 en 1985
- 8%
- Woningen tussen 1985 en 1995
- 5%
Woningen in Heerlen
Cijfers voor postcodegebied 6414
- Woningen tussen 1995 en 2005
- 6%
- Woningen tussen 2005 en 2015
- 1%
- Woningen na 2015
- 1%
- Huurwoningen
- 50%
- Koopwoningen
- 50%
Overige in Heerlen
Cijfers voor postcodegebied 6414
- Gemiddelde WOZ waarde
- € 116.000,-
- Personen onder de 65 met uitkering
- 18%
Overige in Heerlen
Cijfers voor postcodegebied 6414
- Adressen per km²
- 1475
- Stedelijkheid (schaal 1 op 5)
- 60%
Korte feiten over Heerlen
Heerlen (Limburgs: plaatselijk Heële) is een stad en gemeente in het zuidoosten van de Nederlandse provincie Limburg. Op 1 januari 2024 had Heerlen 87.498 inwoners (CBS). Heerlen is daarmee de grootste gemeente in de Oostelijke Mijnstreek, en de vierde van Limburg, na Maastricht, Venlo en Sittard-Geleen.
Parkstad Makelaardij
Indien u vragen heeft of u wilt een bezichtiging inplannen, dan kunt u gebruik maken van het formulier hiernaast. Er zal daarna op korte termijn contact met u worden opgenomen.
Contact opnemen
Parkstad Makelaardij
Twijfelt u of het nu het juiste moment is om uw woning in Parkstad te verkopen? Dat is begrijpelijk zeker als u nog geen nieuw huis heeft gevonden, is die stap niet eenvoudig.
Toch denkt u er misschien aan om net als buren, vrienden of collega’s een volgende stap te zetten. Misschien speelt ook mee dat de markt op dit moment gunstig is, en u juist nu een goede prijs voor uw woning kunt krijgen—een kans die zich de komende jaren mogelijk niet meer voordoet.
Laat daarom vrijblijvend en kosteloos uw woningwaarde bepalen door Parkstad Makelaardij. Zo weet u precies waar u aan toe bent.
Nieuwste reviews
-
Theo Palm
Heel erg tevreden goed en snel geholpen. Huis was heel snel verkocht binnen een 1 week hebben we een goed bod gekregen.Said was goed en snel...
-
Sally-Ann Bazlinton
Uitstekende service! Als u overweegt uw woning te verkopen, kan ik Said en Parkstad Makelaardji van harte aanbevelen. Ik heb nog nooit zo'...
-
Knekten K
Ik heb via Parkstad Makelaardij zowel onroerend goed gekocht als verkocht. Beide keren verliep alles naar wens. Ze bieden een uitstekende se...